Jetty Park Pavilion Renovation

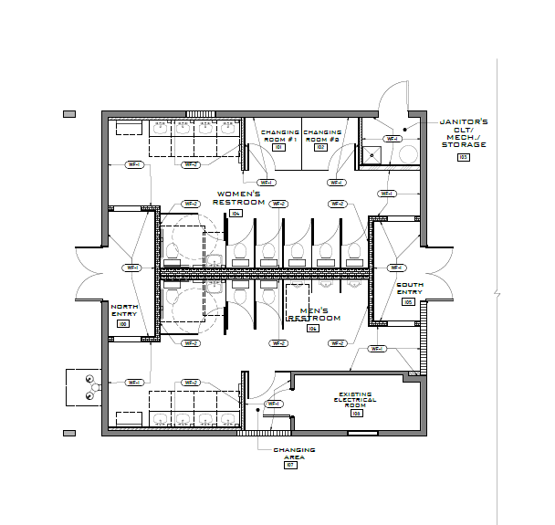
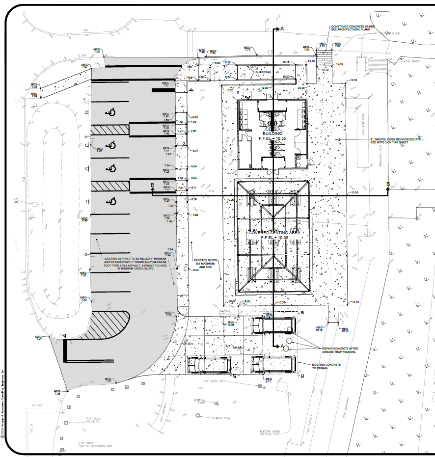
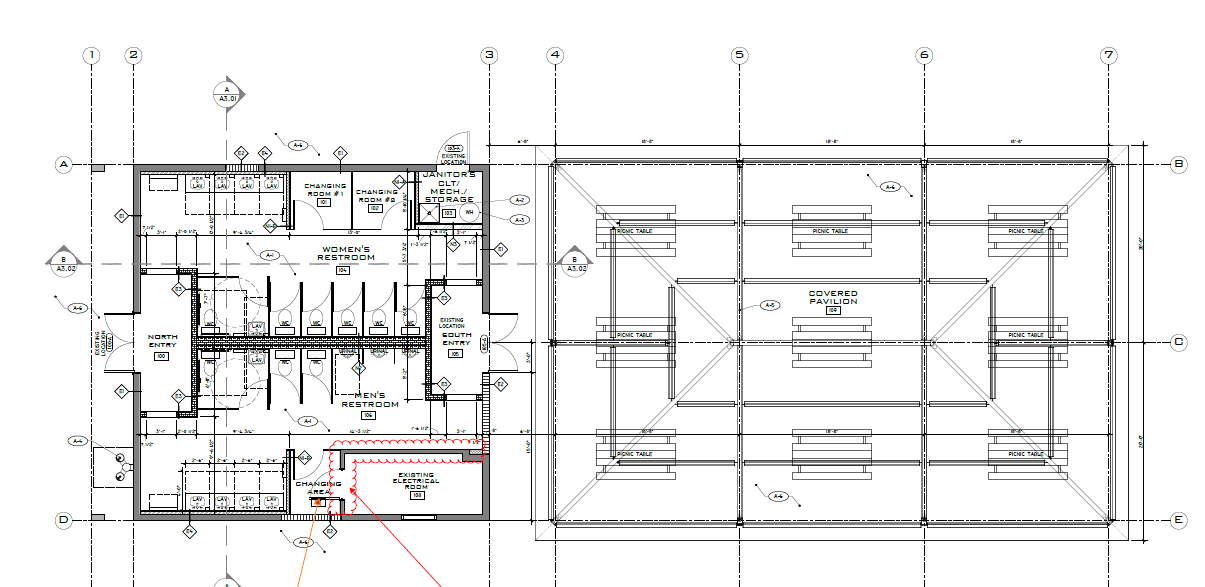
The Port Canaveral Authority has contracted W+J Construction to complete renovations at its Jetty Park Pavilion at Port Canaveral. FUN FACT: This structure was originally built by W+J Construction in 1973! The scope of the project involves demolishing the aging and weather-worn building and replacing it with a new bathrooms building and a covered picnic pavilion. The exterior walls of the new building will have a smooth stucco finish over CMU construction, plus simulated lap siding formed using PVC lap siding step bead in a “wave” design. It will feature a standing-seam metal roof. The pavilion next to it will be covered by a pre-engineered metal structure. Additionally, the parking areas will be replenished – the existing asphalt will be milled and re-paved in front of the building.

Architect: MelD Studio Architecture
Civil Engineer: Morgan & Associates Consulting Engineers, Inc.
Structural Engineer: MK Structural Engineering
Electrical Engineer: Pilo Engineering
Mechanical/Plumbing: Creative by Design Engineering

398 Jetty Park Road, Cape Canaveral, FL 32920